Coyoacán 1240-1242
Residencial, 2020

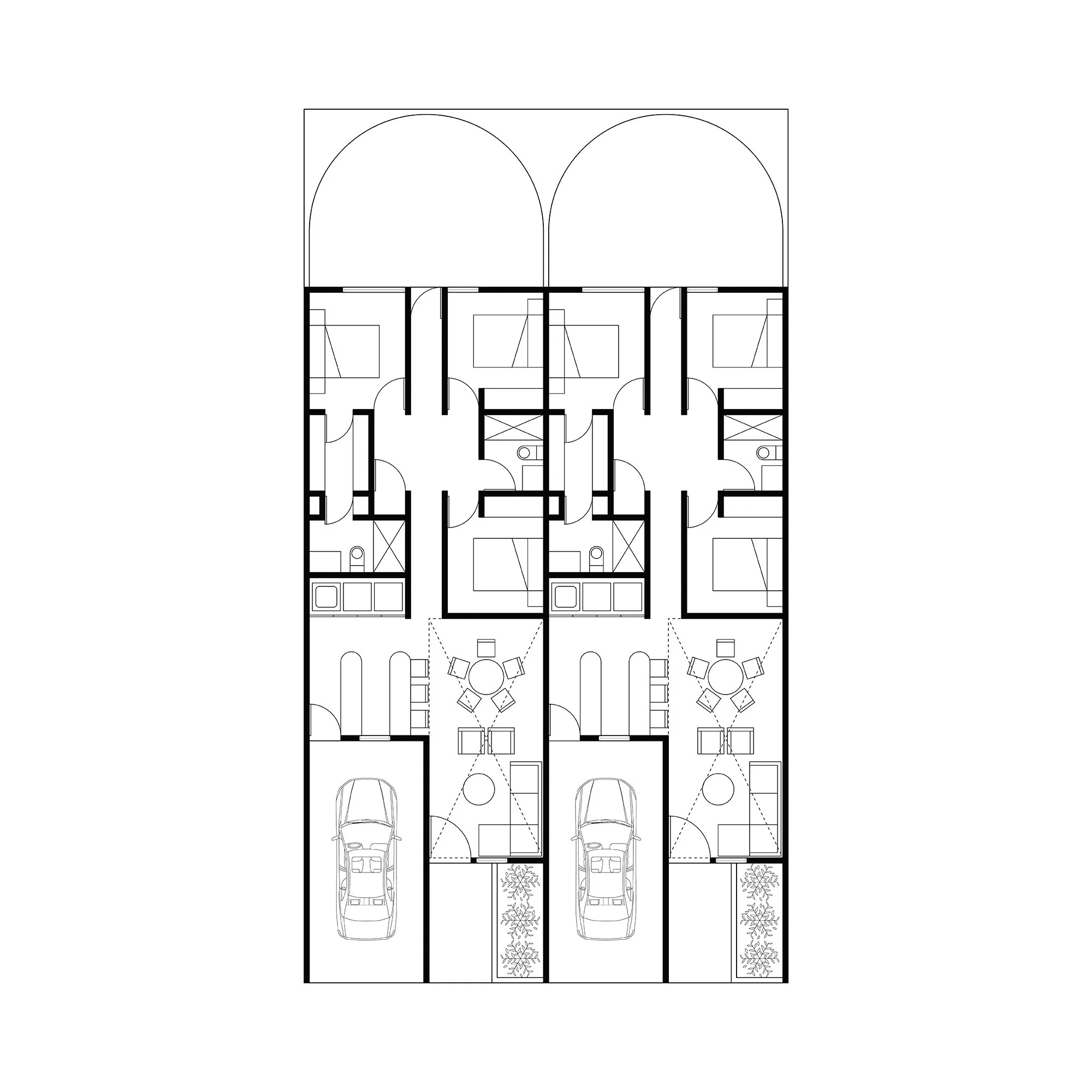
Dos casas gemelas ubicadas en el centro de Ciudad Juárez replantean la forma de habitar el tejido urbano consolidado. El proyecto reinterpreta la vivienda tradicional mediante una propuesta contemporánea de materiales simples y honestos, privilegiando funcionalidad y calidez. Los espacios se organizan alrededor de áreas sociales a doble altura, donde sala y comedor se convierten en el corazón del hogar, aportando amplitud, iluminación natural y una sensación espacial generosa dentro de un contexto denso y urbano.